Casa semindipendente in vendita

Civo, Frazione Cadelsasso - Cadelsasso
€ 56.000
4 locali 4 locali
91 Mq 91 Mq
1 bagno 1 bagno

Casa semindipendente in vendita

Civo, Frazione Cadelsasso - Cadelsasso

Descrizione annuncio

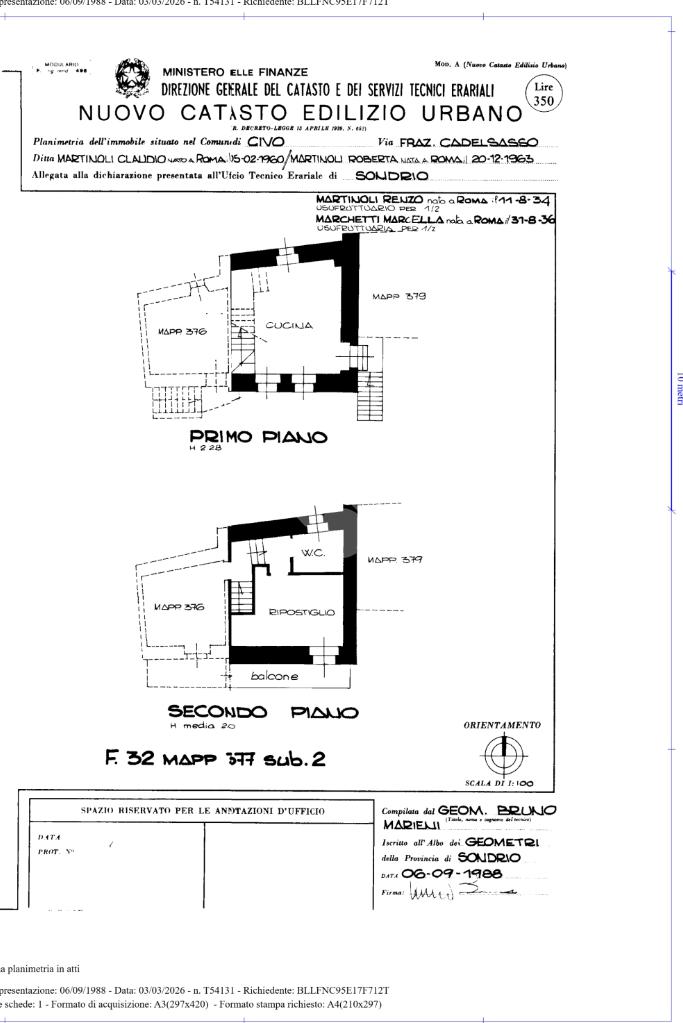
CA DEL SASSO, 32 CIVO

Nel caratteristico borgo di Ca’ del Sasso, in posizione tranquilla e riservata, proponiamo in vendita abitazione indipendente disposta su più livelli, ideale per chi cerca quiete e autenticità.

L’ingresso principale si trova al piano primo, dove si apre una cucina abitabile con camino, ambiente caldo e accogliente, perfetto per momenti conviviali.

Al piano primo rialzato si sviluppa un luminoso soggiorno, che collega internamente la zona giorno alla cameretta situata al piano terra rialzato. Quest’ultima è particolarmente versatile, potendo essere raggiunta sia dal soggiorno sia tramite ingresso indipendente esterno, soluzione ideale anche per studio, stanza ospiti o spazio privato.

Al piano secondo troviamo un bagno e una camera matrimoniale con balcone, da cui si gode una piacevole vista sul borgo circostante.

Completa la proprietà un pratico ripostiglio/cantina posto sotto l’abitazione e un box auto poco distante, comodo e facilmente accessibile.

Una soluzione dal sapore autentico, perfetta sia come abitazione principale sia come casa vacanze in un contesto sereno e suggestivo.

Mostra tutto

Nelle vicinanze

Trasporto pubblico Trasporto pubblico
Trasporto pubblico
820 m
Lavatoio
Lavatoio
1,2 Km
Negozi Negozi
Negozi
980 m
Ristoranti Ristoranti
Albergo Ristorante Coppa
970 m
agriturismo la Pedruscia
1,3 Km
Trattoria Bar da Miglio
2,2 Km
Braceria
2,3 Km
Ristoranti
2,6 Km
Mostra tutto

Caratteristiche

Rif.:
61185846
Piano:
Su più livelli di 2
Totale piani:
2
Box:
1
Terrazzi:
1
Camere da letto:
3
Mostra tutto
Prezzo Prezzo
€ 56.000
Rata mutuo Rata mutuo
€ 265 / mese
Spese annue Spese annue
€ 0
Proponi il tuo prezzoProponi il tuo prezzo
Immobile valutato con T·Valuta

Classe Energetica

G
G
G
G
G
G
G
G
G
EP globale non rinnovabile:
612.84 kW h/m² anno
EP invernale del fabbricato:
EP estiva del fabbricato:
Anno di costruzione:
1950
Riscaldamento:
Autonomo
Tipo impianto:
Ad aria
Tipo alimentazione:
Metano

Ti interessa visionare l'immobile?

Fissa un appuntamento  Fissa un appuntamento

Richiedi informazioni

Clicca su Leggi per aprire l'informativa
* Questi campi sono obbligatori

Calcola il tuo mutuo

Semplice e senza impegno
Anticipo

( % )
Mutuo

( % )

pochi semplici passi

inserisci i tuoi dati
Questionario completato
Grazie per aver richiesto un appuntamento senza impegno con un nostro Consulente del Credito e Assicurativo.

Hai inserito correttamente tutti i dati necessari e a breve riceverai una e-mail con un link da convalidare per inviare i tuoi dati.
Affiliato
Tecnomorbegno Srl
Viale Stelvio, 126 23017 Morbegno (SO)

Il nostro staff


  • Elhias Chakhssi
    Collaboratore

  • Nicola Scarinzi
    Responsabile

  • Luca Moranda
    Affiliato
Viale Stelvio, 126 23017 Morbegno (SO)
Zona: Morbegno
Mostra su mappa
Orari: 9:00 - 12:30 / 14:30 - 19:00
Affiliato
Tecnomorbegno Srl
Viale Stelvio, 126 23017 Morbegno (SO)

2026 Tecnocasa Franchising S.p.A. - P. IVA 08365160152 - Via Monte Bianco 60/A 20089 Rozzano (MI). Ogni agenzia ha un proprio titolare ed è autonoma. Privacy policy | Policy utilizzo | Cookie policy