Quadrilocale in vendita

Morbegno, Viale Stelvio
€ 199.000
4 locali 4 locali
118 Mq 118 Mq
2 bagni 2 bagni

Quadrilocale in vendita

Morbegno, Viale Stelvio

Descrizione annuncio

MORBEGNO-Viale Stelvio

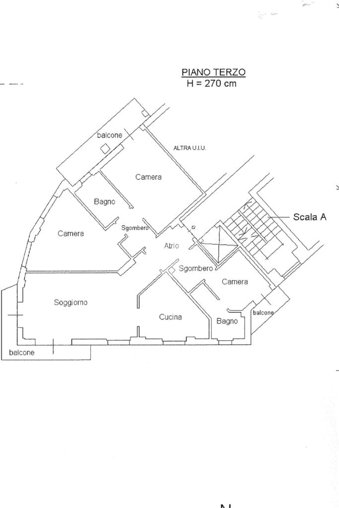
Proponiamo in vendita un appartamento posto al terzo piano di un condominio moderno e ben curato, dotato di ascensore e caratterizzato da un contesto residenziale tranquillo e ordinato.

L’immobile si distingue per la generosa metratura e per la distribuzione degli ambienti che garantisce funzionalità e comfort abitativo.

All’ingresso, un corridoio introduce alla zona giorno composta da un luminoso soggiorno con accesso diretto al balcone e da una cucina abitabile che consente di organizzare al meglio la vita quotidiana.

La zona notte, ben separata, si sviluppa con due camere da letto di buone dimensioni e un bagno finestrato, collocati sul lato destro dell’abitazione. Sul lato sinistro, invece, troviamo una terza camera con bagno privato, che si presta ad essere utilizzata come camera, studio indipendente o spazio riservato per gli ospiti.

Il condominio, di recente costruzione e servito da ascensore, garantisce comodità e sicurezza, inserendosi in un contesto residenziale ben servito e vicino ai principali servizi, scuole e collegamenti.

Questa soluzione rappresenta un’ottima opportunità per chi ricerca un’abitazione ampia, funzionale e pronta ad accogliere una nuova famiglia in un ambiente moderno e confortevole.

Mostra tutto

Nelle vicinanze

Trasporto pubblico Trasporto pubblico
Morbegno
Morbegno
150 m
Morbegno Stazione Ferroviaria
Morbegno Stazione Ferroviaria
120 m
Morbegno Piazza Rivolta
Morbegno Piazza Rivolta
350 m
stazione di Talamona
stazione di Talamona
2,5 Km
Ricariche auto elettriche Ricariche auto elettriche
A2A Morbegno Via Morelli
430 m
Centrale di Regoledo | EnelX
1,8 Km
Scuole Scuole
Scuola Elementare Giuglio Spini
50 m
Scuola Media Ezio Vanoni
80 m
Scuole elementari
1,4 Km
Scuola Media Armida Righini
1,6 Km
Scuole
2,6 Km
Farmacia Farmacia
Farmacia Biglioli
220 m
Farmacia Comunale di Civo
2,7 Km
Ospedali Ospedali
Presidio Ospedaliero Territoriale di Morbegno
380 m
Pronto Soccorso Ospedale Morbegno
400 m
Supermercati Supermercati
Iperal Morbegno
110 m
Sigma
360 m
Alimentari CRAI
720 m
CRAI supermercato di Moiola
1,4 Km
MD
2,1 Km
Negozi Negozi
Val. Market
140 m
United Colors of Benetton
210 m
Bordoni Abbigliamento
210 m
Riva Abbigliamento
220 m
Clips
230 m
Bar Bar
7Bello
90 m
Bar Calypso
320 m
Vineria Birreria Ottocento
350 m
Puerto Escondido
380 m
Antico Valtellina
390 m
Ristoranti Ristoranti
Pizza Egitto
120 m
Antica Osteria Rapella
240 m
Osteria San Giovanni
310 m
Bar pizzeria Poldo
400 m
Ristorante Ancora
460 m
Mostra tutto

Caratteristiche

Rif.:
61112472
Piano:
3 di 3 con ascensore (Piano alto)
Balconi:
2
Camere da letto:
3
Arredamento:
Parziale
Condizionamento:
Assente
Mostra tutto
Prezzo Prezzo
€ 199.000
Rata mutuo Rata mutuo
€ 943 / mese
Spese annue Spese annue
€ 1.250
Proponi il tuo prezzoProponi il tuo prezzo
Immobile valutato con T·Valuta

Classe Energetica

G
G
G
G
G
G
G
G
G
EP globale rinnovabile:
612.84 kW h/m² anno
EP invernale del fabbricato:
EP estiva del fabbricato:
Anno di costruzione:
1967
Riscaldamento:
Centralizzato
Tipo impianto:
A radiatori
Tipo alimentazione:
Metano

Ti interessa visionare l'immobile?

Fissa un appuntamento  Fissa un appuntamento

Richiedi informazioni

Clicca su Leggi per aprire l'informativa
* Questi campi sono obbligatori

Calcola il tuo mutuo

Semplice e senza impegno
Anticipo

( % )
Mutuo

( % )

pochi semplici passi

inserisci i tuoi dati
Questionario completato
Grazie per aver richiesto un appuntamento senza impegno con un nostro Consulente del Credito e Assicurativo.

Hai inserito correttamente tutti i dati necessari e a breve riceverai una e-mail con un link da convalidare per inviare i tuoi dati.
Affiliato
Tecnomorbegno Srl
Viale Stelvio, 126 23017 Morbegno (SO)

Il nostro staff


  • Elhias Chakhssi
    Collaboratore

  • Nicola Scarinzi
    Responsabile

  • Luca Moranda
    Affiliato
Viale Stelvio, 126 23017 Morbegno (SO)
Zona: Morbegno
Mostra su mappa
Orari: 9:00 - 12:30 / 14:30 - 19:00
Affiliato
Tecnomorbegno Srl
Viale Stelvio, 126 23017 Morbegno (SO)

2026 Tecnocasa Franchising S.p.A. - P. IVA 08365160152 - Via Monte Bianco 60/A 20089 Rozzano (MI). Ogni agenzia ha un proprio titolare ed è autonoma. Privacy policy | Policy utilizzo | Cookie policy